تصفح الكمية:0 الكاتب:محرر الموقع نشر الوقت: 30-10-2018 المنشأ:محرر الموقع
ⅰ. تثبيت عمود الصلب لبناء بنية الصلب
1.تسلسل تركيب العمود الصلب:
① إعداد الأساس → ② الربط → ③ رفع → ④ تصحيح → ⑤ التثبيت النهائي
2. طريقة التثبيت عمود الصلب:
(1)التوجه:
أ.التحكم في الارتفاع:
في مشروع البناء الصلب الهيكلي هذا ، يتم التحكم في الأجزاء الحديدية و \"الأشرطة الوسطى \" وفقًا لعمق فم الكوب الخرساني ، وارتفاع قاع العمود الصلب والارتفاع المدمج في وسط أسفل الفم أثناء البناء من الأساس الخرساني (قضبان الصلب φ30) ، يعتمد ارتفاع السطح العلوي لـ \"التعزيز الأوسط \" على ارتفاع قاع عمود الصلب ، ويتم التحكم في خطأ الارتفاع في أجزاء الحديد في ± في حدود 1 مم.
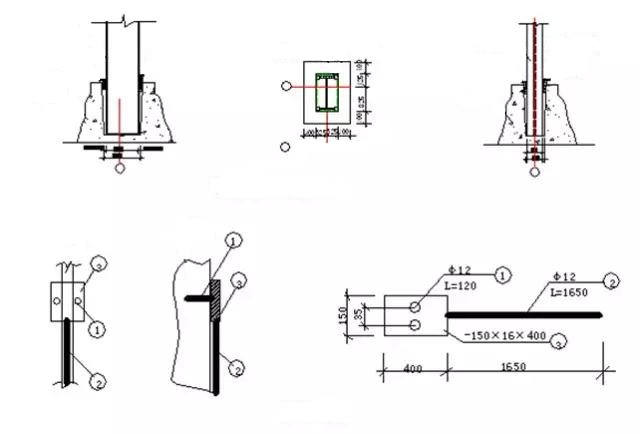
لضمان تضمين عمود الصلب في الأساس بدقة وحزمφفي 30 \"التعزيز الأوسط \" ، لحام صفيحة فولاذية بسمك 20 في أسفل العمود الصلب على شكل حرف H ، كما هو موضح في الشكل أدناه.
عند تثبيت عمود الفولاذ الهيكلي ، قم بتنظيف كأس الأساس أولاً ، وتحقق من التحكم في الارتفاع المدمج \"التعزيز الأوسط \" في الأساس(φالارتفاع الفعلي لـ 30 شريطًا من الصلب) ليس ضروريًا لأن الارتفاع المضمّن في بناء الأساس قد تم التحكم فيه بدقة ، ولا توجد حاجة إلى وسادة حديدية إضافية. هذه الطريقة بسيطة وسريعة وفعالة لمعالجة أقدام العمود الفولاذية. البناء سريع والقوة معقولة. عندما يتم رفع العمود ، يمكن ضبطه بحرية في عدة اتجاهات عندما يكون الارتفاع دون تغيير.
ب.قبل التثبيت ، يتم وضع الخطوط المرجعية للمحور الرأسي والأفقي لطائرة الأساس في الجزء العلوي من الفم الكأس بواسطة دلو الحبر الخشبي كخط التثبيت والوضع في عمود الصلب.
(2) ربط العمود والرفع:
أ. بعد دخول العمود الصلب إلى الموقع ، يجب ترتيب العمود الفولاذي وفقًا لموضع خطة الرفع ، ويتم التحقق من النموذج والرقم لمعرفة ما إذا كانت صحيحة. يظهر موضع طائرة العمود الصلب بعد دخول الموقع في الشكل التالي.
ب. قبل رفع العمود ، يتم رسم خط أفقي مع الطلاء الزيتي الأحمر 2300 مم لأعلى من أسفل العمود ، وذلك لإعادة فحص مسند ارتفاع الطائرة قبل وبعد التثبيت والتثبيت.
C. تثبيت العمود ينتمي إلى الرفع الرأسي. من أجل الحفاظ على انخفاض العمود المعلق وتسهيل تحديد المواقع ، يتم تحديد نقطة الربط في الجزء السفلي من القوس. من أجل منع الحواف والزوايا الحادة من حافة العمود من إتلاف حبل الرفع أثناء الرفع ، يتم استخدام الحزام المطاطي للسيارة القديمة لفصل الحافة والزاوية. انتبه إلى الربط بحزم وسهل الإزالة.
يجب ربط سلم الفولاذ المؤقت وتثبيت التثبيت عالي القوة من منصة العمل على العمود الصلب.
E. من أجل تجنب التأرجح الحر للعمود المعلق ، يجب استخدام حبل القنب لربط الجزء العلوي من أسفل العمود كحبل ضبط النفس وضبط الاتجاه.
و وفقًا لظروف الموقع ، يتم اعتماد طريقة الدوران للرفع
بعد الاستعدادات قبل الرفع جاهزة ، يتم رفع المحاكمة أولاً. عندما يكون ارتفاع العمود الصلب 200 مم فوق الأرض ، يجب إيقاف الرفع للتحقق مما إذا كان التزوير ثابتًا وما إذا كانت الرافعة مستقرة. بعد التأكيد على أنه لا توجد مشكلة ، يمكن توجيه الرافعة للرفع ببطء ، وتدوير إلى أعلى الفم ، ثم النزول ببطء. عندما تكون المسافة بين الجزء السفلي من العمود وموضع التصميم 40-100 مم ، قم بضبط خطين المسند لجسم العمود والأساس للوصول إلى الموضع الدقيق ، وتوجيه الرافعة إلى النزول إلى الموضع ، وإصلاح مؤقت عمود مع إسفين الصلب (أو إسفين الخشب) وحبل الرياح لإزالة الخطاف.
• طريقة الدوران الرئيسية:
تسمى طريقة رفع العمود عن طريق تدوير العمود حول قاعدة العمود طريقة الدوران ، كما هو موضح في الشكل A أدناه. عندما يتم رفع العمود عن طريق طريقة الدوران ، من أجل تحسين كفاءة الرفع ، عندما يدخل العمود الصلب إلى الموقع ، يجب وضع نقطة الربط للعمود ، مركز قاعدة العمود ومركز الأساس الكأس على قوس مع نقطة توقف الرافعة كنقطة الوسط والمسافة من نقطة التوقف إلى نقطة الربط (أي نصف قطر الدوران للعمود) ، كما هو موضح في الشكل B أدناه.

يظهر رفع العمود الصلب في الشكل أدناه:

(3) تصحيح الأولي للعمود:
يجب تصحيح العمود على الجانب مع انحراف كبير أولاً ، ثم على الجانب بانحراف صغير.
أ.يتضمن تصحيح العمود عمومًا موضع الطائرة والارتفاع والتعامد.
ب. عندما يتم رفع العمود الفولاذي في مكانه ، يكون محاذاة لمرة واحدة ، وعموما لا يحتاج إلى تصحيح طائرة. لارتفاع العمود ، تم استخدامه قبل رفع φ يمكن أن يتحكم في الارتفاع الدقيق \"التعزيز الأوسط \" بدقة. بشكل عام ، يجب التحقق منه فقط ، ولا يلزم تصحيحه. لذلك ، فإن تصحيح العمود الصلب هو بشكل أساسي لتصحيح العمودي وإعادة فحص الارتفاع.
جيم في هذا المشروع ، لوحظت عمودي العمود ، ويتم استخدام اثنين من الثيودوليت لقياس وتصحيح.
• أولاً ، ضع الثيودوليت على جانب واحد من العمود ، وقم بمحاذاة سلك المركزي الطولي مع خط الأساس لقاعدة العمود ، ثم إصلاح مسامير اللوحة الأفقية.
•قياس خط الوسط للعمود ومراقبة من أسفل إلى أعلى. إذا تم محاذاة خط المركز العمودي ، فهذا هو ، العمود عمودي. إذا لم يتم محاذاة ، يجب تعديل العمود حتى يتم محاذاة مع خط المركز الطولي للثيودوليت.
•قم بقياس الخط الأفقي بنفس الطريقة بحيث يكون الخط المركزي للجانب الآخر من العمود عموديًا على المحور الأفقي للخط الأساسي. بعد وضع العمود بدقة ، يمكن إصلاح العمود.
•تصحيح عمودي للعمود الفولاذ: يتم استخدام قضيب المسمار ضبط المسافة وإسفين الصلب. بسبب سطح التلامس الصغير للجانب الطويل من العمود ، يتم تعيين اللوحة الأساسية أثناء البناء. والتفاصيل هي على النحو التالي.

يظهر البعد التصنيع لإسفين الصلب في الشكل أدناه:

(4) المحاذاة النهائية وتثبيت الأعمدة الفولاذية:
بعد رفع العمود الصلب في مكانه ، يتضمن تصحيح العمود بشكل أساسي تعديل الارتفاع وتصحيح العمودي ؛ يمكن أن تستخدم طريقة التصحيح أدوات مثلحبل الرياح، ، جاك ، كراون ، إسفين الصلب (أو إسفين خشبي) لتطبيق القوة الرأسية والقوة الجانبية للسحب ، الرفع ، الدعم والتقدم إلى العمود الصلب.
اضبط العمودي ، محور تحديد المواقع وارتفاع العمود. بعد تأكيد الصواب ، يتم سكب الفجوة بين العمود الفولاذي وفم كوب الأساس بخرسانة حجرية C40. ويفضل مواد الحشو عالية القوة الموسعة.
Ⅱ حماية مكونات الموقع:
1) يجب أن يكون تفريغ المكونات حريصًا على منع الأضرار ومنع الاصطدام والبثق بين الأعضاء.
2) يجب تكديس الأعضاء بالترتيب في الموقع المحدد ، ولا يجوز أن يتجاوز عدد الطبقات المكدسة بواسطة عوارض فولاذية 3 طبقات لمنع الأعضاء من الضغط والتشوه.
3) قبل الرفع والزيت والرواسب والغبار على سطح المكونات يجب تنظيفها.
Ⅲ وضع المكونات ومتطلبات الموقع
1) عند التفريغ ، يتم تفريغ المكونات مباشرة بالقرب من موضع التثبيت وداخل نصف قطر دوران الرافعة. حدد الرقم بوضوح مع قلم ملون واضح لتسهيل الرفع.
2) يتم وضع المكونات بالترتيب في الموقع ، ويتم حجز فجوة معينة بين المكونات المجاورة لتسهيل الربط.
3) يجب أن يكون الموقع صلبًا ومسطحًا ، ولا يتم تلوث المكونات بسبب المطر والثلوج ، ويمكن السير في السيارة التي يبلغ طولها 30 طنًا.
Ⅳ تركيب بناء هيكل الصلب
التحضير قبل رفع عمود الصلب:
قبل رفع العمود الصلب ، يجب ربط حبل الرياح الكبلية بجسم العمود. يجب أن تكون نقطة الرفع في وضع القوس ، ويجب إعداد حبل الأسلاك المزدوجة لأعلى ولأسفل ، ويمكن التحقق من حلقة المفاجئة لتكون مؤهلة قبل الدخول إلى العمل التالي. قبل رفع العمود الفولاذي ، يجب فحص محور تحديد المواقع ومحور الأساس والارتفاع وحجم فتح الكوب وارتفاع المعيار السفلي للعمود الفولاذي وتسليمه وقبوله. يجب مراجعة العدد ، البعد المخطط ، وضع ثقب المسمار وقطر العمود الفولاذي بشكل شامل. بعد التأكيد على أنه يلبي متطلبات رسومات التصميم ، قم بإخراج خط مركز التثبيت وخط الارتفاع السفلي للعمود الفولاذي.
Ⅴ رفع عمود الصلب
(1) طريقة تثبيت عمود الصلب
قبل رفع العمود الفولاذي ، يجب تثبيت اللوحة الخشبية عند قدم العمود لمنع تلف قدم العمود والهياكل الأخرى.
يتم استخدام حبل الأسلاك الصلب الخاصة برفع لربط العمود الصلب. يجب استخدام ورقة الخشب أو المطاط لمنع تلف العمود الصلب.
يتم تثبيت العمود الصلب بواسطة رافعة شاحنة 25T. عند رفع العمود الفولاذي ، يجب أن تقوم الرافعة بربط الذراع وتدويرها أثناء رفع العمود الفولاذي لجعل العمود الفولاذي رأسيًا بعيدًا عن الأرض.
(2) تعديل المواقع والتثبيت المؤقت
عندما يتم رفع العمود الفولاذي إلى 200 مم فوق فم الكوب الأساسي ، سيكون مستقرًا ، وسوف يسقط ببطء عند فم الكوب الأساسي. تجنب ضرب الحافة الخرسانية لفم كأس الأساس أثناء السقوط. بعد التنفيذ ، استخدم مسطرة الزاوية الخاصة للتحقق ، اضبط العمود الصلب لجعل خط تحديد المواقع يتزامن مع محور تحديد المواقع الأساس. يُطلب من ثلاثة أشخاص تشغيل التعديل ، ويقوم شخص واحد بنقل العمود الصلب ، ويساعد شخص واحد على الاستقرار ويقوم الشخص الآخر بإجراء الاختبار. يتم التحكم في خطأ تحديد المواقع داخل 2mm.
(3) عند ضبط ارتفاع العمود الفولاذي ، ضع حديد الوسادة في أسفل مؤسسة الكوب ، استخدم المستوى لتسوية ارتفاع لوحة الصفيحة السفلية للعمود الصلب كارتفاع أعلى لحديد الوسادة ، بحيث يكون يمكن أن يفي الارتفاع بعد العمود الصلب بمتطلبات ارتفاع التصميم ، وتمييز نقطة بيانات الارتفاع على جسم العمود ، ثم استخدم المستوى لقياس ارتفاع التثبيت بعد تثبيته في مكانه.
(4)يجب أن تكون عمودي العمود الصلبأوليةتعديلها من قبل المسطرة المستوى. ثم يتم استخدام اثنين من الثيودوليت لمراقبة من جانبي العمود في نفس الوقت ، ويتم التعديل من خلال الاعتماد على حبل الرياح الكابل. كما هو مبين في الشكل أدناه:

رسم تخطيطي لتعديل العمود الفولاذ
(5) بعد التعديل ، استخدم ثمانية أسافين حديدية لوضع الفجوة بين الجزء السفلي من العمود الفولاذي وقاعدة كوب فم ، ثم اكتشف اللحام العمود لجعله مستقرًا.
ⅵ تثبيت شعاع الصلب
يجب تكديس عوارض الصلب بالترتيب في الموقع لهذا العمل الصلب في البناء. يجب وضع ينامون في منتصف كل طبقة من عوارض الصلب. يتم اختيار نقطتين لرفع شعاع الصلب على جانبي مركز ثقل الحزمة الصلب. يجب أن تكون نقطتي الرفع على بعد 800 مم من الدعم ووسط الفترة ، ويجب زيادة المسافة بين نقطتي الرفع وفقًا لطول شعاع الصلب.
لضمان السلامة ومنع الحافة الحادة لحزمة الفولاذ من قطع حبل الأسلاك الفولاذية ، يجب حماية حبل الأسلاك الفولاذية ، ولا تقل زاوية الرافعة عن 450 ، ويجب ربط شعاع الصلب مباشرة وتدويره حبل الأسلاك الفولاذية أو رفع مع لاعبا اساسيا خاصة.
قبل رفع شعاع الصلب ، قم بتثبيت حبل الأمان على شعاع الصلب. عند الرفع ، شنق الحبال المنزلقتين في كلا طرفي شعاع الصلب. شخصان يسحبان حبلتين منزلقتين على التوالي. يجب أن تكون سرعة الرفع لحزمة الصلب بطيئة. من أجل ضمان السلامة ، يجب ألا يقف الموظفون مباشرة تحت الحزمة. يتم وضع أكياس القماش المستخدمة خصيصًا لوضع البراغي عالية القوة على طرفي شعاع الصلب. عندما يتم رفع شعاع الصلب فوق الموضع ، يتم وضع شعاع الصلب في مكانه. يتم التحكم في سرعة انخفاض شعاع الصلب في 3M / دقيقة. يتم ترتيب اثنين من المثبتات في كلا طرفي رأس العمود الصلب للتحضير لتركيب شعاع الصلب. عندما تكون شعاع الصلب قريبًا من الموضع الموجود في مكانه ، يجب أن يحتفظ مثبتان بالحافة العلوية من الحزمة الفولاذية بأيديهم على التوالي ، وسحب شعاع الصلب إلى الموضع في مكانه ، والاستعداد لتثبيت البراغي ذات القوة العالية.
Ⅶ تركيب بنية الاحتفاظ وركن الدعم Brace
1) تركيب بورلين السقف: عندما يشكل الفولاذ الهيكلي الرئيسي قسمًا للإطار ، يتم رفع رواق السقف إلى الحزمة الرئيسية للسقف مع رافعة وتثبيتها يدويًا. يمكن أيضًا سحب بورلين يدويًا على السطح بحبل اصطناعي أبيض للتركيب. بعد تثبيت Purlin ، يتم تثبيت دعم Purlin في الوقت المناسب.
2) تثبيت Wall Purlin: عندما يشكل الهيكل الرئيسي قسمًا للإطار ، يقف موظفو البناء على منصة السقالات وسحبوا الجدار إلى موضع التثبيت بحبل شامل أبيض.
3) تركيب الدعامة الزاوية: بعد أن يتم لحام الجسم الرئيسي ، يتم توصيل دعامة الزاوية.
Ⅷ قياس وتصحيح العمود الصلب
تصحيح عمودي للعمود الفولاذ
عندما يتم تثبيت العمود الصلب وتصحيحه ، يتم إعداد اثنين من الثيودوليت على خط التحكم مع ترجمة 90 درجة من 1 متر بعضها البعض ، ويلاحظ مشغلي الثيودوليت المسطرة الصلب الصغيرة في الجزء العلوي من العمود ، قياس انحراف الصلب العمود وتوجيه التصحيح.
أ.Control العمودية للعمود الفولاذ بين المفاصل الرفع الأولى.
بتنقسم معايرة عمود TEEL إلى أربع خطوات:
المعايرة الأولية أثناء التشديد الأولي ؛إعادة المعايرةقبل التشديد النهائي. تتبع ومراقبة أثناء عملية اللحام ؛ قياس النتيجة النهائية بعد اللحام.
يمكن التحكم في العمودية تقريبًا بمستوى طويل قبل التشديد الأولي ، ويمكن تصحيحه بدقة بعد تشكيل الإطار. بعد اللحام ، يجب إجراء اختبار ، وتتم مقارنة نتائج القياس مع تلك الموجودة في التشديد النهائي ، بحيث تكون الأساس للبناء التالي.
C. طريقة قياس العمودي لعمود C الصلب
التصحيح الأولي: عمودي العمود الصلب هوأوليةتعديل مع حاكم المستوى.
تصحيح دقيق للعمود الصلب عمودي: يتم استخدام شبكة عمود واحدة كقسم تثبيت لرفع الإطار الرئيسي حتى يتم الانتهاء من رفع ثلاثة أقسام كاملة مستمرة
بعد تشكيل الكل ، يمكن إدراج تصحيح القياس. يتم استخدام اثنين من الثيودوليت لمراقبة من جانبي العمود في نفس الوقت ، ويستخدم حبل الرياح للتصحيح والتكيف.
Ⅸ مسح هيكل الصلب

2) التحكم في الارتفاع في عمود الصلب
استنادًا إلى النقطة المرجعية للارتفاع لطبقة الطائرة حيث يوجد العمود الفولاذي ، يتم قياس قيمة الانحراف للارتفاع الأفقي للعمود الفولاذي بمقياس المستوى ويتم توجيه التصحيح.
3) قياس شعاع الصلب
بعد رفع العمود الصلب وتصحيحه ، يتم قياس نقطة التحكم +1.00 م لكل عمود فولاذي وفقًا لمستوى الموقع كأساس للنقل الرأسي للارتفاع وارتفاع تركيب الحزمة ؛ منبثقة خط الوسط من شعاع الصلب على سطح شعاع الصلب.
يتم قياس محور التحكم إلى جسم العمود للتحكم في إزاحة موضع الحزمة ؛ يتم التحكم في دقة ارتفاع الحزمة وفقًا لنقطة التحكم في ارتفاع العمود. قم بإعداد Theodolite على منصة الأرضية ، ثم انظر إلى الزاوية المتقاطعة إلى محور الحزمة المقابلة. تهدف إلى خط الوسط للسطح العلوي للحزمة إلى الطرف الآخر مع ثيودوليت لمعرفة ما إذا كان الرقم يتزامن مع محور الحزمة.
حساب المسح والبيانات lofting
في هذا المشروع ، يتم استخدام طريقة الاستعلام التلقائي للكمبيوتر لحساب بيانات المسح وبيانات. الخطوات المحددة هي كما يلي:
1) إنشاء نموذج البيانات
أولاً ، وفقًا لإحداثيات التصميم وعلاقة الأبعاد لكل مبنى في رسم التصميم ، يتم رسم المبنى ، محور البناء ، خط التحكم الذي سيتم رسمه وما إلى ذلك في AutoCAD وفقًا للنسبة ، ويتم إنشاء نموذج البيانات.
2) مسح البيانات والاستعلام عن البيانات
بعد رسم نموذج بيانات المسح العلوي ، يتم الاستعلام عن بيانات المسح العلوي مثل الزاوية والمسافة بين الأساس المعروف (كومة التحكم في المحور ، المحور lofted ، وما إلى ذلك) وخط التحكم المراد أن يكون ذلك باستخدام أمر dist of autocad .
3) مزايا الاستعلام التلقائي للكمبيوتر
يتم استخدام طريقة الاستعلام التلقائي للكمبيوتر للحصول على بيانات القياس وتحديد المواقع المطلوبة. ليس من المناسب حساب فقط ، ولكن لديه أيضًا دقة عالية. يمكن ضبط دقة المسافة على 0.1 مم ، 0.01 مم ، ودقة الزاوية إلى 0.0 \"، 0.00 \" أو أعلى وفقًا للوضع الفعلي.
Ⅹ بناء الترباس عالي القوة
1.Pالتعبير قبل التثبيت
1) اختبار وفحص الترباس عالي القوة
اختبار معامل الانزلاق
يعتمد المشروع من الفئة 10.9 مسامير كبيرة سداسية عالية القوة. يجري إجراء اختبار معامل الانزلاق للبراغي عالية القوة من خلال أخذ سماكة اللوحة الأكثر تمثيلا في المشروع للاختبار ، ويجب إجراء ثلاث مجموعات.
حجم لوحة العينة كما يلي:
اختبار القوة المحورية
حدد بشكل عشوائي البراغي المراد تثبيتها في موقع البناء ، ويتم اختيار 8 مجموعات من أزواج الترباس لفحص إعادة التفتيش في كل دفعة.
2) نقل وتخزين مسامير عالية القوة
المواصلات
يجب تصنيع وتزويد النموذج والحجم والظروف التقنية لزوج توصيل الترباس عالي القوة وتزويده من قبل الشركة المصنعة وفقًا لشهادة المصنع وزوج اتصال الترباس عالي القوة ، والذي يتوافق مع أحكام المعايير الوطنية GB1228-231- 84 و GB3632-3633-83. مسامير عالية القوة مع سداسي كبير لهيكل الصلب
يتكون زوج التوصيل من الترباس ، الجوز وغسالات. يجب أن يفي مزيج الاستخدام بالمعايير الوطنية ، ويجب تزويد زوج اتصال الترباس عالي القوة بالتخزين والنقل في نفس الدفعة.
يجب تثبيت زوج توصيل الترباس عالي القوة ووضعه بخفة أثناء التحميل والتفريغ والنقل والتخزين لمنع التالف أو التالف.
تخزين مستودع الترباس عالي القوة
1. يجب تنظيف زوج اتصال الترباس عالي القوة وفقًا للمواصفات ورقم الدفعة وتاريخ الإمداد لصندوق التعبئة ، ويجب الاحتفاظ به في المستودع الداخلي ، ولا يجب أن يكون التراكم أعلى من 3 طبقات. يجب منع تلوث الرطوبة الداخلي ، والجاف على المدى الطويل ، والصدأ والأوساخ ، ويجب منع معامل عزم الدوران من التغيير. يجب أن تكون الطبقة السفلية أكثر من 300 مم فوق مستوى الأرض.
2. عند التثبيت في الموقع ، يتم إصدار كمية البراغي عالية القوة المطلوبة في اليوم. يجب أن تبقى الباقي بشكل صحيح. لا تضعه في الاضطراب ، وتلف الخيط ، وتكون ملوثة بالأوساخ.
3. قبل استخدام زوج اتصال الترباس عالي القوة على المدى الطويل ، يجب إجراء فحص شامل للجودة مرة أخرى. إذا تم العثور على أي ظاهرة غير طبيعية بعد التفريغ ، يجب إجراء معيار التفتيش وفقًا للأحكام ذات الصلة من المعايير الوطنية GB1228-1231-84 و GB3632-3633-83. يمكن استخدامه بعد التأهيل.
3) إدارة البناء من البراغي عالية القوة
1. مدير البناء
عند تنفيذ بناء هذا الترباس عالي القوة ، يتم تحديد مدير الترباس عالي القوة أولاً على أنه مسؤول عن إدارة المشروع وإدارة الجودة وتوجيه موظفي البناء.
2. إدارة الطقس (الظروف المناخية)
من حيث المبدأ ، لن يتم إجراء أي عملية أثناء هطول الأمطار وتساقط الثلوج. في حالة حدوث هطول أمطار أو تساقط الثلوج أثناء التشغيل ، يجب تسريع السرعة لقفل تلك غير المكتملة
3. إدارة سطح الاحتكاك
قبل التشديد ، يتم فحص سطح الاحتكاك أولاً. إذا كان هناك أي مرفقات لتقليل قدرة محمل سطح الاحتكاك ، مثل الصدأ والزيت والطلاء والبقايا والفرشاة المعدنية وورق الصنفرة وهب الأسيتيلين الأكسجين يجب استخدامه للإزالة.
4) بناء مسامير عالية القوة
1. التشديد النهائي للمسامير المؤقتة
قبل إدخال مسامير عالية القوة ، يجب استخدام البراغي المؤقتة لتشديد الاتصال بإحكام ، إذا كانت مواد أجزاء الاتصال مثنية أو مشوهة ، يجب تصحيحها.
إذا كان الفرق بين الثقوب في حدود 2 مم ، فيمكن تصحيحه بواسطة القاطع.
إذا تجاوز اختلاف الثقوب 2 مم ، فسيتم اعتماد طرق علاج معقولة مثل استبدال اللوحة بناءً على التشاور مع موظفي الإدارة ، ولا يُسمح بقطع الغاز والتمديد.
2. إدخال الترباس عالية القوة
يجب أن تنتبه الجوز وحشية الترباس عالي القوة لاتجاه التثبيت ، وتثبيت وفقًا للشكل التالي.
عند إدخال البراغي ، انتبه إلى عدم إرفاق الصدأ والغبار والزيت وما إلى ذلك بالمسامير. بالإضافة إلى ذلك ، لا تجبر ثقب الترباس أثناء البناء لتجنب إتلاف الخيط.
3. التشديد الأولي
بعد قفل براغي التثبيت المؤقتة ، قم بتأكيد انضغاط المكونات.
بعد التشديد الأولي ، ضع علامة على علامة بيضاء من خلال صمولة الترباس ، وحشية و component.

عند استخدام مفتاح التفتيش ، على الرغم من أن قيمة عزم الدوران يمكن تأكيدها بواسطة صوت الاتصال ، فمن السهل التشديد أكثر إذا استمرت الآلية في تطبيق القوة ، لذلك تجدر الإشارة إليها.

4) التشديد النهائي
بعد التشديد الأولي ، استخدم مفتاح الربط الخاص للقفل حتى يتم كسر الرقبة.
من حيث المبدأ ، يجب أن تكون البراغي التي تم إدراجها في نفس اليوم في نفس اليوم.